VANĂ SERTAR CU CAPETE DIN CONDUCTE PE, PN10
Conductă PE neagră/albastră SDR 17, PE100
Contact
Felix Gyori
Director Operații Tranzacții pentru România și Republica Moldova
Vană sertar cu capete PE100 PN10 SDR17 pentru apă potabilă și lichide neutre de până la maximum 20°C. Notă: Temperatura maximă de lucru este stabilită în conformitate cu cerințele ISO9080 pentru țevile PE și, prin urmare, nu reprezintă temperatura maximă pentru vană.
Vanele cu sertar pană AVK sunt proiectate în fiecare detaliu cu elemente de siguranță integrate. Sertarul pană este complet vulcanizat cu cauciuc de producție AVK de tip EPDM aprobat pentru apă potabilă. În acest fel se asigură o durabilitate remarcabilă prin capacitatea cauciucului de a-și recăpăta forma sa inițială, prin cele două straturi speciale aplicate pentru a asigura o vulcanizare optimă și prin proiectarea robustă a sertarului pană. Triplul sistem de etanșare de pe tijă, axul foarte rezistent și protecția completă împotriva coroziunii asigură o fiabilitate de neegalat.
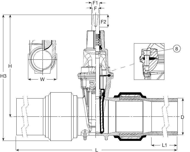
| Variantă 36/80-126 | |
|---|---|
| Conexiune | Capete PE |
| Material | Fontă ductilă |
| DN | DN65 - DN500 |
| PN | PN 10 |
| Direcția de închidere | Închidere în sens orar |
Caracteristici
- Piuliță sertar fixă și integrată care previne vibrațiile și asigură durabilitate
- Sertar complet vulcanizat cu profile de ghidaj, saboți integrați și orificiu conic, mărit al sertarului
- Ax din oțel inoxidabil cu limitator de cursă și filet prelucrat prin roluire care asigură o rezistență sporită
- Full circle thrust collar provides fixation of the stem and low free running torques
- Triplu sistem de etanșare pe ax cu un inel de protecție din NBR împotriva impurităților, un lagăr din poliamidă
cu 4 inele cu secțiune circulară din NBR și o garnitură de etanşare din EPDM - Garnitură EPDM circulară a capacului fixată într-un profil
- Șuruburi capac cu cap înecat sigilate cu ceară și înconjurate de garnitura capacului
- Secțiune transversală integrală
- Cuplu de operare redus
- Acoperire epoxidică conform DIN 3476 part 1 și EN 14901, aprobată GSK
- Conductele din PE sunt presate pe capetele canelate ale vanei, blocate cu inele și izolate cu manșoane termocontractabile din plastic. Conexiunea PE fără șuruburi și cu secțiune transversală integrală este rezistentă la tracțiune și este proiectată în conformitate cu criteriile specificate în DVGW G5600-1 (vanele ≤ DN400 sunt aprobate DVGW). Capetele PE permit sudarea directă pe conducte din PE rezultând un montaj rapid și sigur.
Notă: la temperaturi mai mari de lucru durata de viață a conductei din PE se poate reduce. Pentru informații suplimentare, consultați datele furnizate de producătorul de conducte.
Descărcări
| Gate valves with PE ends Water.mp4 |
Tabel cu date
| Nr. ref. AVK | DN mm |
D mm |
H mm |
H3 mm |
L (± tol) mm |
L1 mm |
W mm |
F mm |
F1 mm |
F2 mm |
Greutate teoretică kg |
Note |
|---|---|---|---|---|---|---|---|---|---|---|---|---|
| 36-075-80-263 | 65 | 75 | 271 | 900 (20) | 250 | 135 | 17 | 20 | 34 | 12 | ||
| 36-090-80-26306499 | 80 | 90 | 282 | 342 | 900 (20) | 255 | 173 | 17 | 20 | 34 | 12 | |
| 36-110-80-26306499 | 100 | 110 | 305 | 378 | 860 (20) | 250 | 194 | 19 | 22 | 34 | 17 | |
| 36-125-80-26306499 | 125 | 125 | 346 | 432 | 860 (20) | 300 | 222 | 19 | 22 | 34 | 26 | |
| 36-160-80-26306499 | 150 | 160 | 400 | 502 | 1030 (20) | 325 | 274 | 19 | 22 | 34 | 36 | |
| 36-180-80-26306499 | 150 | 180 | 400 | 508 | 1030 (20) | 265 | 274 | 19 | 22 | 34 | 36 | |
| 36-200-80-26306499 | 200 | 200 | 490 | 615 | 1080 (20) | 255 | 334 | 24 | 27 | 34 | 63 | |
| 36-225-80-26306499 | 200 | 225 | 490 | 632 | 1080 (20) | 265 | 334 | 24 | 27 | 34 | 72 | |
| 36-250-80-263 | 250 | 250 | 664 | 810 | 1280 (30) | 420 | 372 | 27 | 31 | 47 | 118 | |
| 36-280-80-263 | 250 | 280 | 664 | 823 | 1360 (30) | 365 | 372 | 27 | 31 | 47 | 126 | |
| 36-315-80-263 | 300 | 315 | 740 | 924 | 1420 (30) | 355 | 448 | 27 | 31 | 47 | 189 | |
| 36-355-80-263 | 300 | 355 | 740 | 961 | 1520 (30) | 355 | 448 | 27 | 31 | 47 | 230 | |
| 36-400-80-263 | 400 | 400 | 912 | 1165 | 1700 (30) | 355 | 564 | 32 | 37 | 55 | 376 | |
| 36-450-80-263 | 400 | 450 | 935 | 1200 | 1800 (40) | 384 | 564 | 32 | 37 | 55 | 424 | Nu este inclus în certificatul SVGW, flanșă superioară F14, ax rotund cu pană și canal de pană |
| 36-500-80-263 | 400 | 500 | 951 | 1246 | 1850 (40) | 350 | 564 | 32 | 37 | 55 | 486 | Nu este inclus în certificatul SVGW, flanșă superioară F14, ax rotund cu pană și canal de pană |
| 36-560-80-263 | 500 | 560 | 1118 | 1448 | 2200 (40) | 474 | 834 | Ø30 | - | 75 | 958 | Nu este inclus în certificările DVGW și SVGW |
| 36-630-80-263 | 500 | 630 | 1136 | 1502 | 2350 (40) | 534 | 834 | Ø30 | - | 75 | 1063 | Nu este inclus în certificările DVGW și SVGW |
Componente
| 1. | Ax | Oțel inoxidabil 1.4104 (430F) |
| 2. | Inel raclor | Cauciuc NBR |
| 3. | O-ring | Cauciuc NBR |
| 4. | Lagăr | Poliamidă |
| 5. | Capac | Fontă ductilă GJS-500-7 (GGG-50) |
| 6. | Inel de sprijin | Alamă DZR, CW602N |
| 7. | Garnitură tip manșetă | Cauciuc EPDM |
| 8. | Șurub capac | Oțel inoxidabil A2, etanșat cu ceară |
| 9. | Etanșare capac | Cauciuc EPDM |
| 10. | Piuliță sertar | Alamă DZR, CW626N |
| 11. | Sertar | Fontă ductilă, încapsulată cu EPDM |
| 12. | Corp | Fontă ductilă GJS-500-7 (GGG-50) |
| 13. | Corp | Oţel carbon |
| 14. | Furtun termocontractabil | Plastic |
| 15. | Conductă | PE |
Aprobări
- Scaun: 1.1 x PN (bar). Corp: 1.5 x PN (bar). Test al cuplului de operare. |
- Test hidraulic în conformitate cu EN 1074-1 și 2 / EN 12266
- Aprobat conform DIN-DVGW Certificat NW-6202BN0114
- Aprobare Belgaqua
- Aprobat conform SVGW Certificat Nr. 0301-4608 pentru Ø ≤ 400mm
- Aprobare ACS, Certificat 18 ACC NY 369
Standarde
- Design conform EN 1074 partea 1 & 2, Design conform EN 1171